GKCT15型三輸出、二輸出荷重傳感器、變送器
- 產品分類:稱重測力傳感器
- 全國咨詢熱線:
- 13907318074
分享到:
概述
GKCT15型三輸出、二輸出荷重傳器 型電阻應變式荷重傳感器,采用十字剪切梁結構,具有良好的自然性和穩定性、抗偏載能力強、精度高、外形高度低、安裝方便穩定。可廣泛用于料斗秤、汔車衡、軌道衡等電子秤中。也可在各系統中作力的分析和測量。
主要技術指標
非線性誤差 ≤±0.05℅F.S
滯后誤差 ≤±0.05℅F.S
重復性誤差 ≤±0.025℅F.S
輸出靈敏度 2~2.5mV/V
溫度零點影響 ±0.005℅F.S/℃
蠕變(30min) ±0.05℅F.S
輸出阻抗及橋壓 350Ω/10VDC
700Ω/10VDC
絕緣電阻 ≥2000ΜΩ
過載能力 120℅F.S
工作環境溫度 -10℃~+55℃
系列規格 300~500(Kg) 1~2 3~5 10~15 20~30(t)
變送器輸出 0~5VDC 0~10VDC 1~5VDC 0~10mA 0~20mA 4~20mA
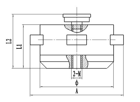
外形尺寸單位(mm)
GKCT15型三輸出、二輸出荷重傳器 型電阻應變式荷重傳感器,采用十字剪切梁結構,具有良好的自然性和穩定性、抗偏載能力強、精度高、外形高度低、安裝方便穩定。可廣泛用于料斗秤、汔車衡、軌道衡等電子秤中。也可在各系統中作力的分析和測量。
主要技術指標
非線性誤差 ≤±0.05℅F.S
滯后誤差 ≤±0.05℅F.S
重復性誤差 ≤±0.025℅F.S
輸出靈敏度 2~2.5mV/V
溫度零點影響 ±0.005℅F.S/℃
蠕變(30min) ±0.05℅F.S
輸出阻抗及橋壓 350Ω/10VDC
700Ω/10VDC
絕緣電阻 ≥2000ΜΩ
過載能力 120℅F.S
工作環境溫度 -10℃~+55℃
系列規格 300~500(Kg) 1~2 3~5 10~15 20~30(t)
變送器輸出 0~5VDC 0~10VDC 1~5VDC 0~10mA 0~20mA 4~20mA
外形尺寸單位(mm)
| 測量范圍 | L1 | L2 | Φ | Φ1 | A | Μ |
| 300~500㎏ | 66 | 93 | 112 | 42 | 172 | 12×1.5 |
| 1~2t | 67 | 93 | 112 | 42 | 172 | 18×1.5 |
| 3t | 72 | 100 | 118 | 46 | 178 | 20×1.5 |
| 5t | 82 | 110 | 128 | 50 | 188 | 24×1.5 |
| 10~15t | 90 | 130 | 140 | 60 | 204 | 27×2 |
| 20t | 117 | 177 | 180 | 78 | 250 | 39×2 |
| 30t | 145 | 200 | 200 | 90 | 268 | 52×3 |





